Nuovo spazioso appartamento con giardino privato
Località : Camorino
Venditaappartamenti
Località : Camorino
Prezzo:CHF 520'000.00
Dettagli immobile
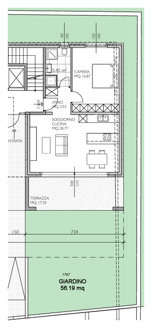
Numero locali : 2.5
Superficie : 84 m2
Terrazzo/e : 18 m2
Giardino : 56 m2
Piano appartamento: Piano Terreno
Numero appartamento : 2
indirizzo :In Busciurina
Disponibilità : Subito
Descrizione Immobile
La Residenza Vero appena ultimata sorge in zona molto tranquilla e ben soleggiata, in posizione comoda e strategica: dista solo un chilometro dal centro di Giubiasco e dall’uscita autostradale di Bellinzona-Sud.
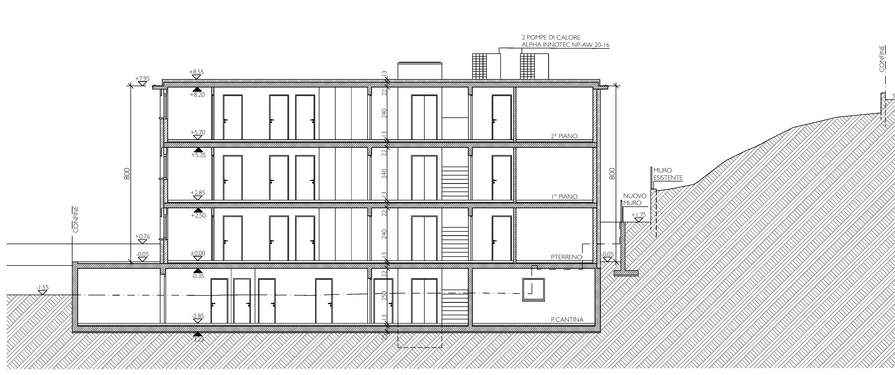
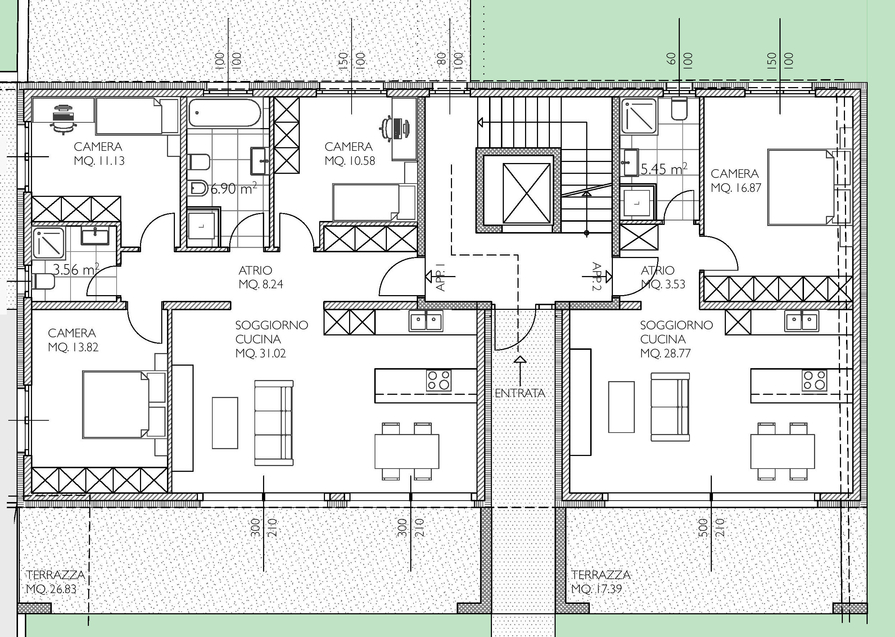
La residenza è composta da soli 6 appartamenti: 3 unità di 2 ½ locali e 3 unità di 4 ½ locali che sono distribuiti due per piano e ripartiti tra il piano terreno ed il secondo piano.
L’edificio verrà realizzato in stile costruttivo tradizionale, con elementi in beton e mattoni e con isolazione termica delle facciate con cappotto di 160 mm e serramenti con tripli vetri.
Particolare attenzione è stata data agli aspetti energetici: Termopompa per la produzione di calore, serpentine a bassa temperatura posate a pavimento per la sua distribuzione ed impianto fotovoltaico con pannelli solari posati sul tetto.
L’abitazione è libera sui tre lati, gli spazi architettonici sono valorizzati sia dalla tipologia di distribuzione che dalla scelta personale delle rifiniture.
L’illuminazione è garantita dalla posa di Spot ad incasso sia nella zona giorno che nei servizi.
Ogni abitazione dispone degli allacciamenti per la colonna lava-asciuga all’interno dell’appartamento, installazioni che saranno previste anche nel locale cantina.
Gli spazi esterni sono molto valorizzati e garantiti dai giardini privati e dalle grandi terrazze coperte.
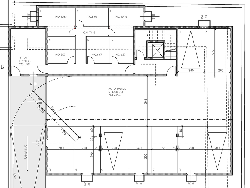
Al piano interrato, comodamente raggiungibile tramite ascensore, sono ubicate le cantine, il locale tecnico e l’autorimessa per nove posti auto.
Di fronte ai posti auto è presente l’alimentazione per le colonne di ricarica di alimentazione per auto elettriche.
A disposizione un posto auto in autorimessa.
















