Nuovo appartamento con grande giardino in zona comoda e tranquilla
Località : Sementina
Venditaappartamenti
Località : Sementina
Prezzo:CHF 895'000.00
Dettagli immobile
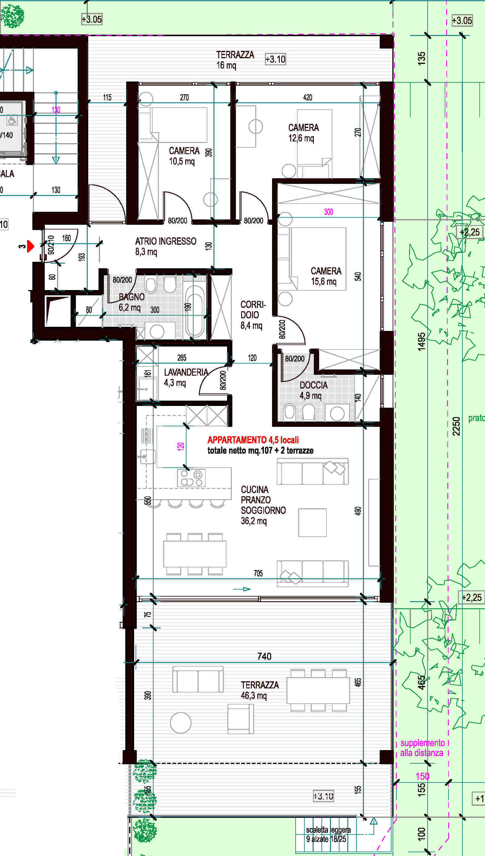
Numero locali : 4.5
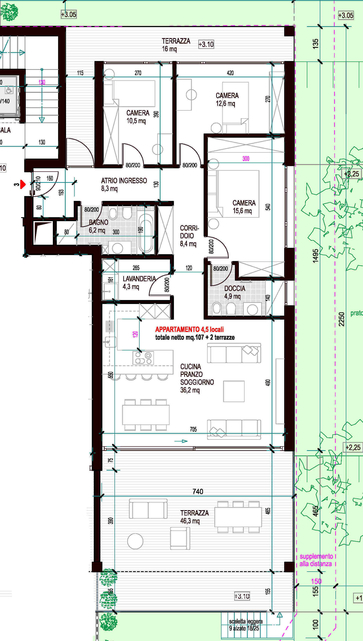
Superficie : 120 m2
Terrazzo/e : 61 m2
Giardino : 320 m2
Piano appartamento: 1° piano
Numero appartamento : 3
indirizzo :Via ai Prati
Disponibilità : Concordare
Descrizione Immobile
La Residenza ai Prati sorgerà nell’omonima via con comodo accesso da Via al Ticino, in zona molto ben servita e nelle immediate vicinanze dei principali servizi.
La zona è molto pregiata e la Via ai Prati è particolarmente tranquilla, essendo una piccola strada di quartiere con transito solo per i residenti.
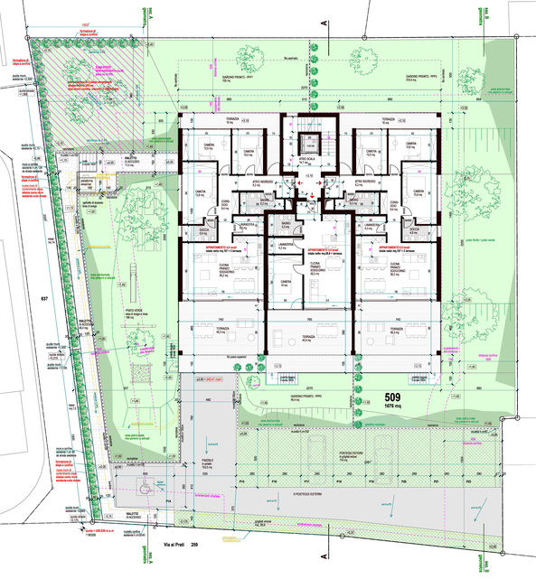
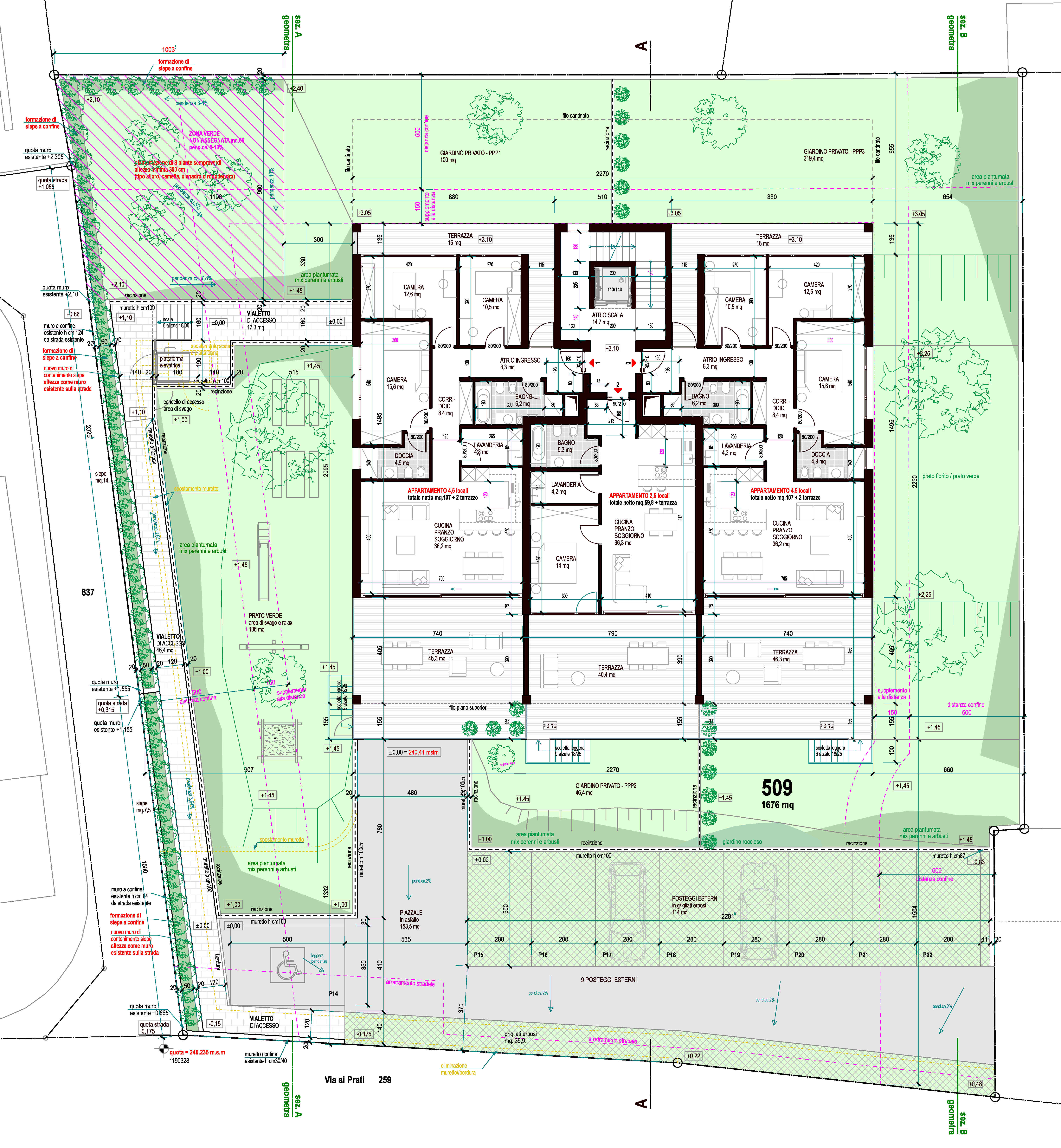
La residenza è composta da 12 appartamenti: 4 unità di 2 ½ locali e 8 unità di 4 ½ locali che sono distribuiti tre per piano e ripartiti tra il livello 1 ed il livello 4.
L’edificio verrà realizzato in stile costruttivo tradizionale, con elementi in beton ed in muratura e con isolazione termica delle facciate.
Particolare attenzione è stata data agli aspetti energetici: Impianto a regolazione individuale per ogni locale, termopompa aria/acqua e distribuzione calore con serpentine a bassa temperatura posate a pavimento e pannelli solari fotovoltaici posati sul tetto.
Gli appartamenti offrono spazi architettonici valorizzati sia dalla tipologia di distribuzione che dalla scelta personale delle rifiniture.
Ogni abitazione dispone della sua lavanderia privata ubicata all’interno dell’appartamento.
Gli spazi esterni molto importanti sono garantiti sia dai giardini al piano terreno che dalle grandi terrazze coperte che per le abitazioni di 4 ½ locali sono doppie.
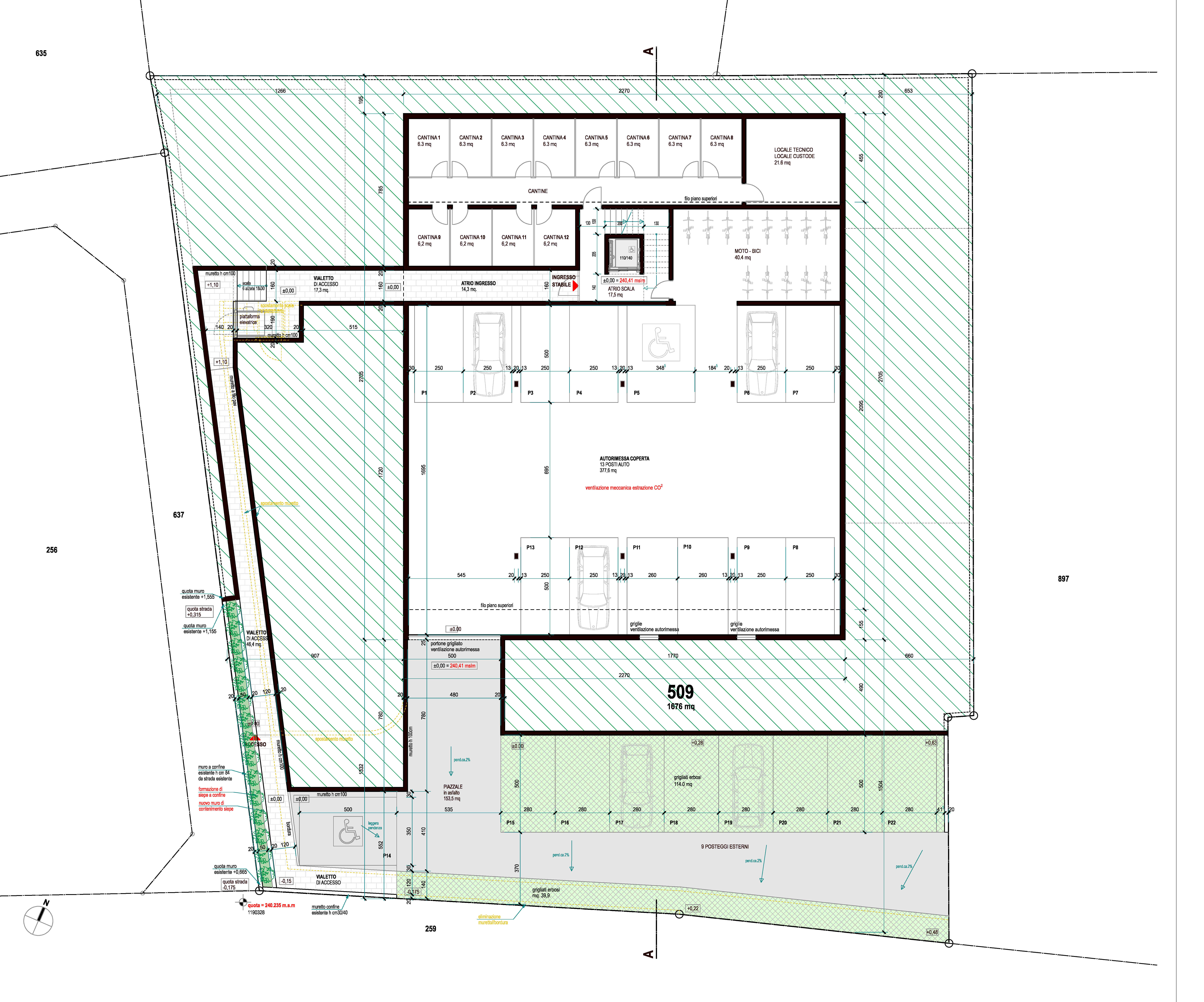
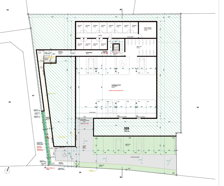
Al piano interrato della residenza si trovano l’autorimessa e le cantine, i posteggi esterni sono ubicati al piano terreno, che sono assegnati e già compresi nel prezzo.
L'appartamento 3 dispone di un posto auto coperto.














