TROVA la casa dei tuoi sogni

APRI LA ricerca

Nuovo esclusivo appartamento in zona comoda e strategica

Località : Bellinzona

Venditaappartamenti

Località : Bellinzona

Prezzo:CHF 465'000.00

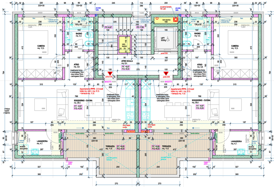
Dettagli immobile

Numero locali : 2.5

Superficie : 63 m2

Terrazzo/e : 11 m2

Piano appartamento: 1° piano

Numero appartamento : 2

Numero piani : 4

indirizzo :Via Vallone

Disponibilità : Subito

Descrizione Immobile

La Residenza Sila 9, che sorgerà in zona Geretta con accesso da Via Vallone, dista solo un chilometro e mezzo dalla nuova stazione FFS ed è poco discosta dal centro cittadino.

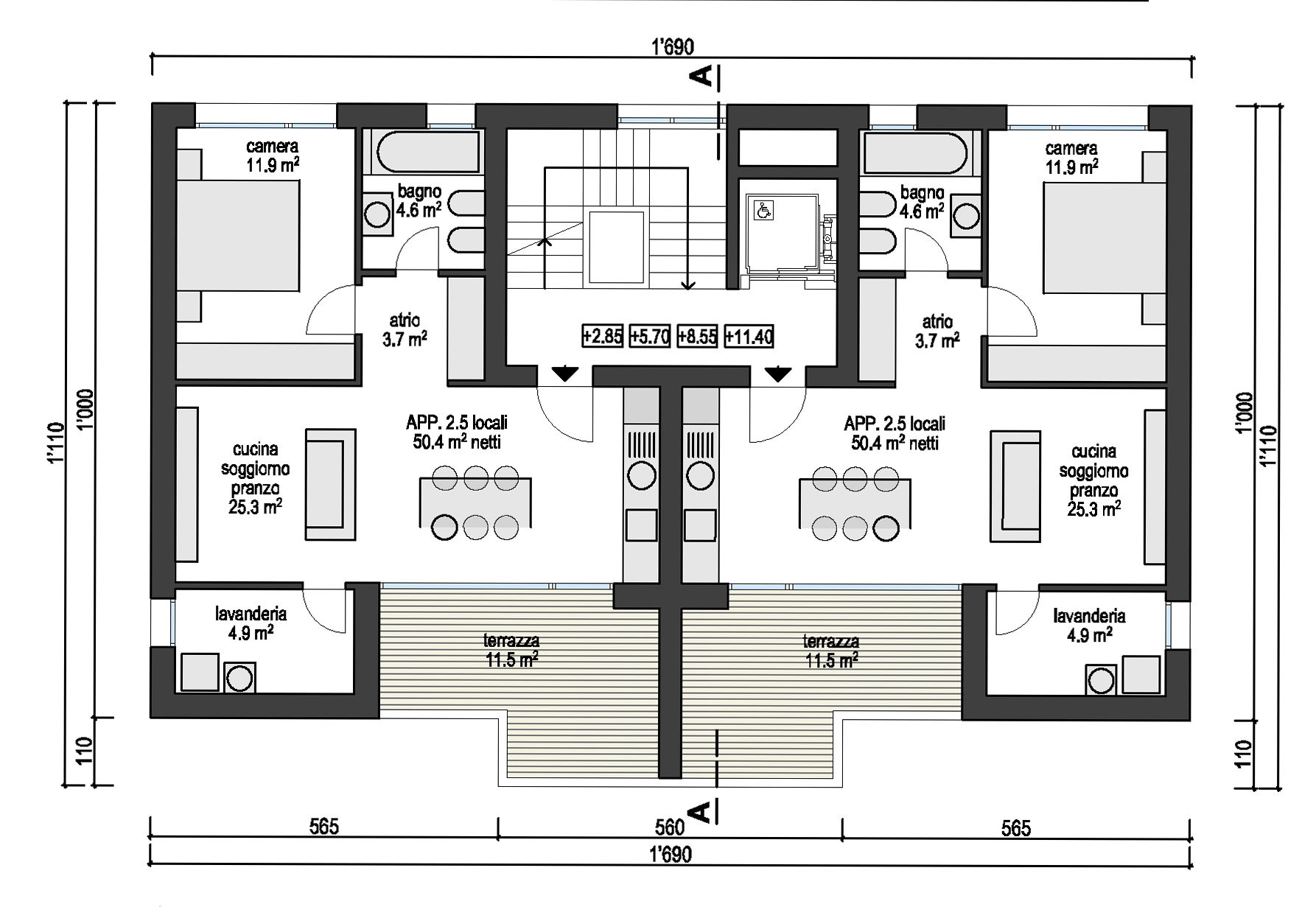
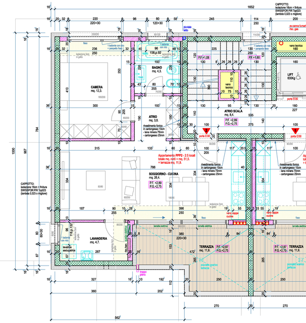
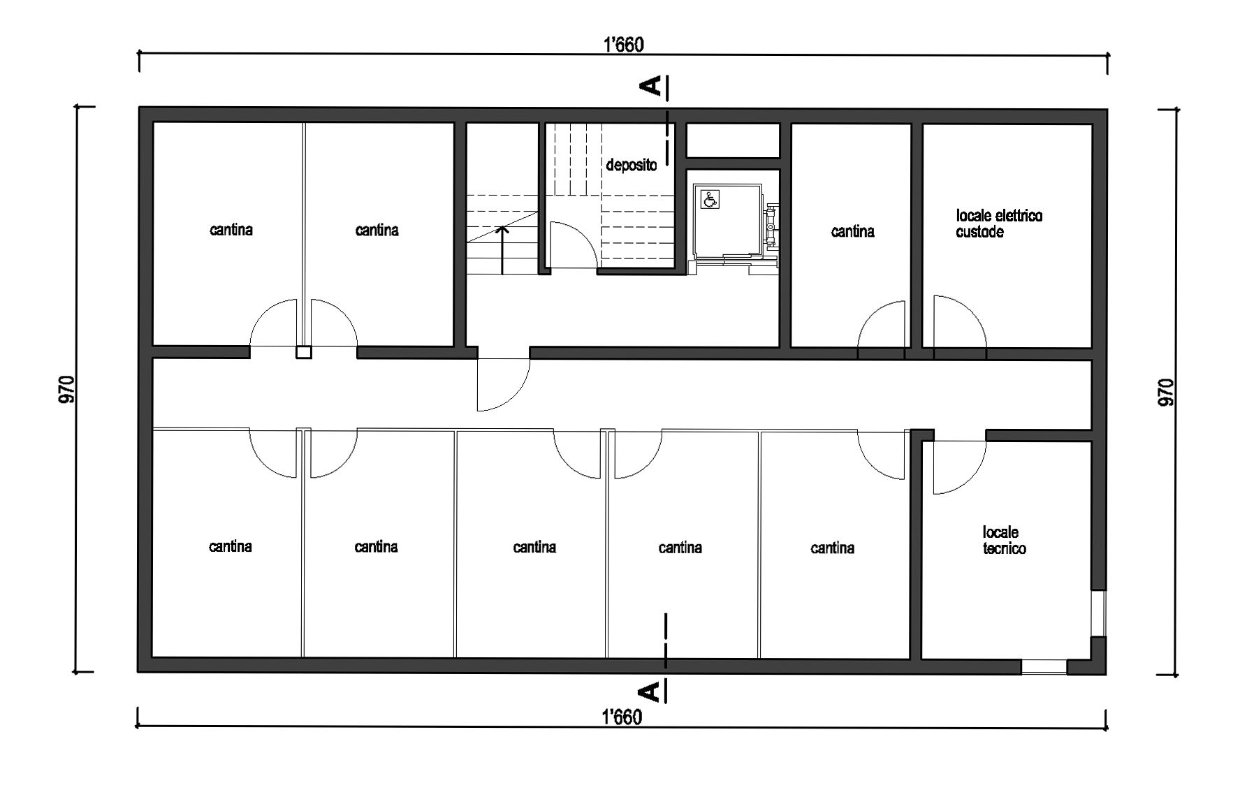
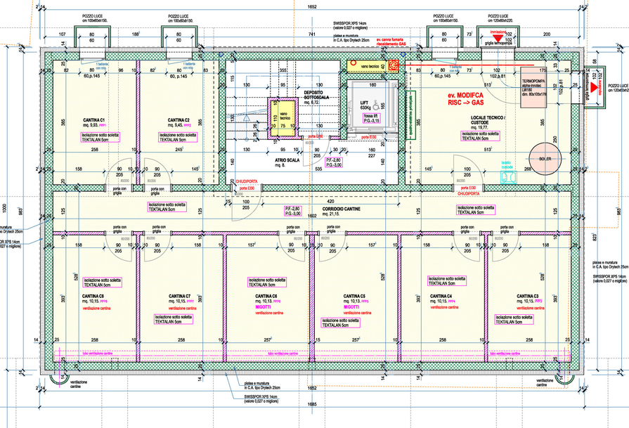
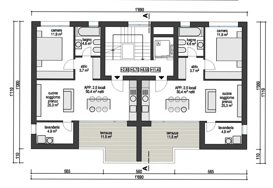
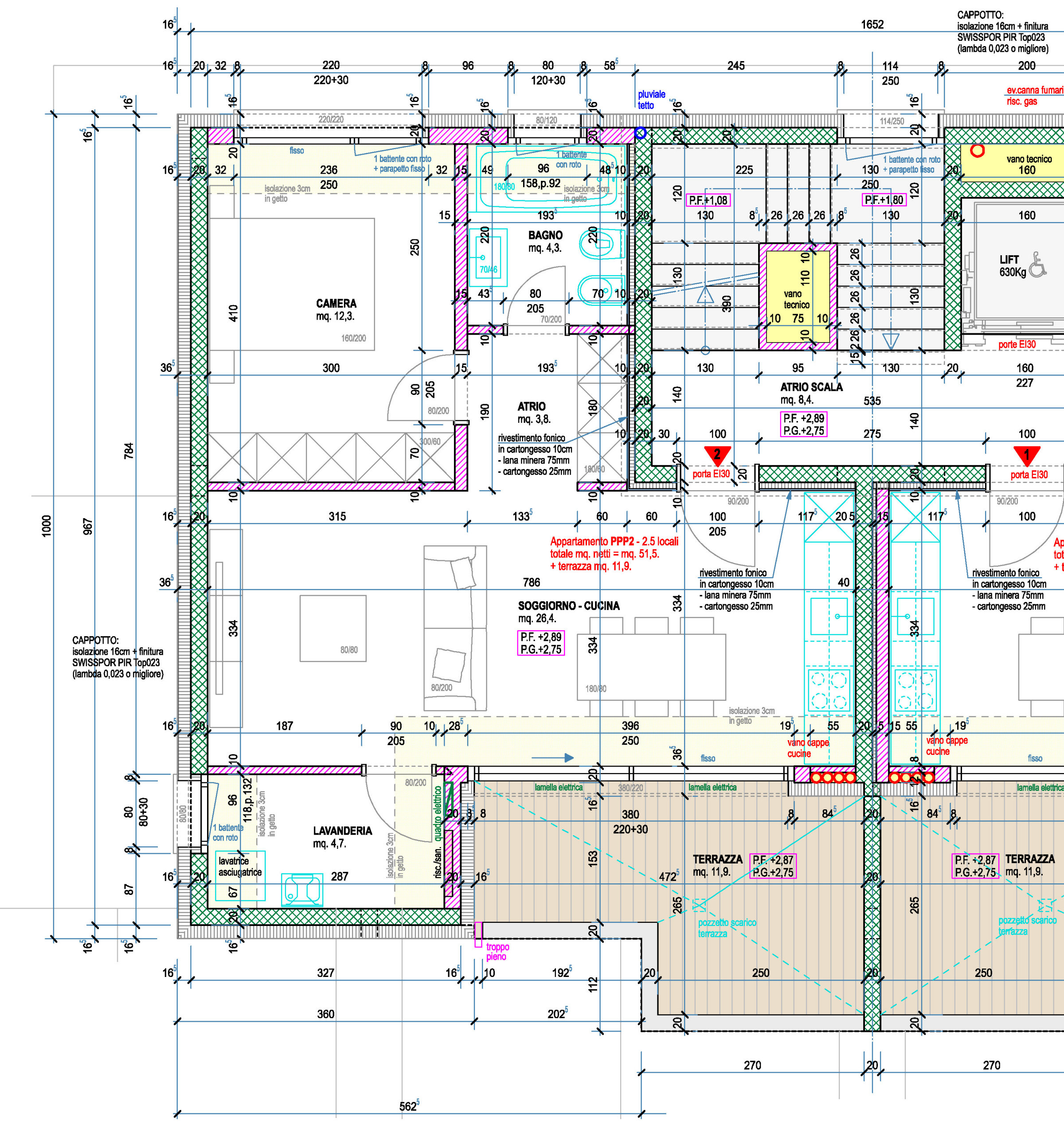
La residenza è composta da soli 8 appartamenti di 2 ½ locali, distribuiti due per piano e ripartiti tra il livello 1 ed il livello 4.

L’edificio verrà realizzato in stile costruttivo tradizionale, con elementi in beton ed in muratura e con isolazione termica delle facciate.

Particolare attenzione è stata data agli aspetti energetici: Impianto a regolazione individuale per ogni locale, termopompa aria/acqua e distribuzione calore con serpentine a bassa temperatura posate a pavimento e pannelli solari posati sul tetto per produzione acqua calda sanitaria.

L’abitazione è libera sui tre lati, gli spazi architettonici sono valorizzati sia dalla tipologia di distribuzione che dalla scelta personale delle rifiniture.

Ogni abitazione dispone della sua lavanderia privata ubicata all’interno dell’appartamento.

Gli spazi esterni sono garantiti dalle belle terrazze coperte.

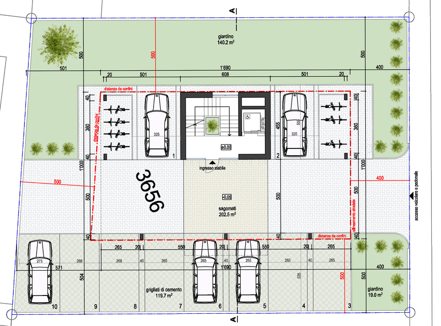
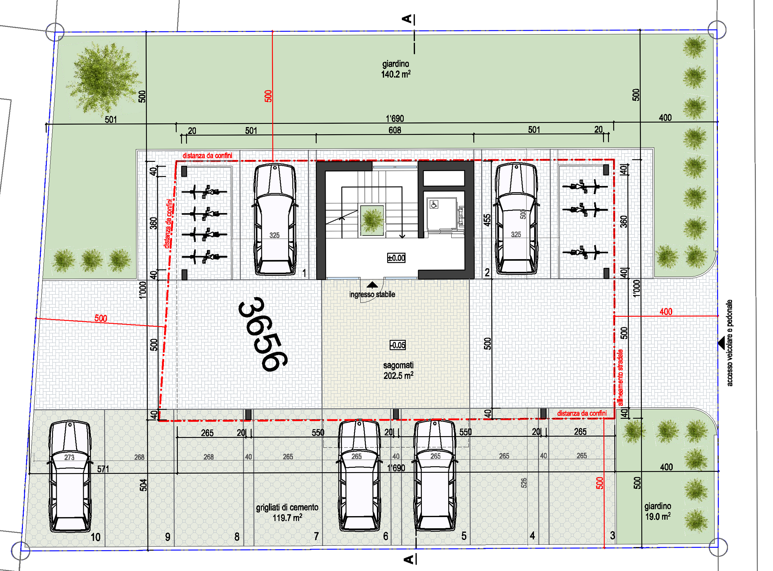
Al piano terreno della Residenza si trovano i posti auto coperti oppure i posteggi esterni, che sono acquistabili separatamente per permetterne la scelta in base alla disponibilità.

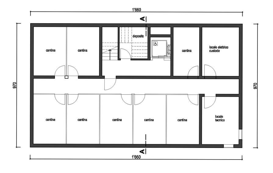
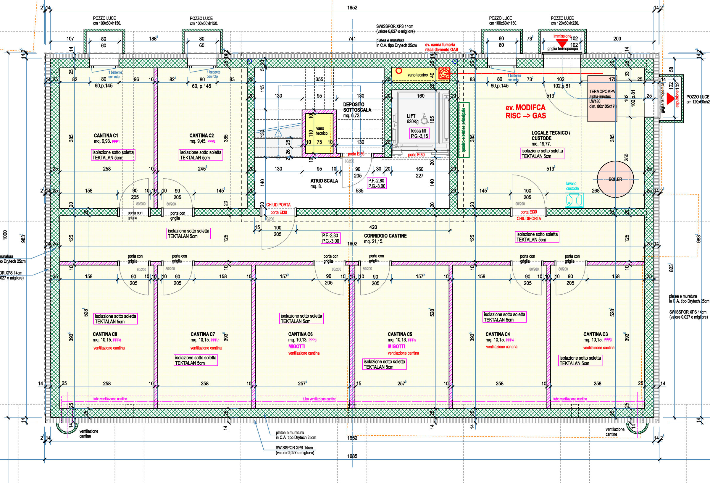
Al piano interrato comodamente raggiungibile con ascensore sono ubicate le cantine, il locale custode ed il locale tecnico.

* campi obligatori.
Please insert valid email address.
Richiesta informazioni Codice oggetto: 20838
INVIA SCHEDA A UN AMICO