TROVA la casa dei tuoi sogni

APRI LA ricerca

Villetta completamente ristrutturata con bel giardino pianeggiante

Località : Osogna

Venditacase

Località : Osogna

Prezzo:CHF 670'000.00

Dettagli immobile

Numero locali : 4.5

Superficie : 120 m2

Giardino : 260 m2

Terreno : 331 m2

indirizzo :Via stradone 45

Disponibilità : Concordare

Descrizione Immobile

La proprietà è ubicata in Via Stradone 45, zona residenziale molto tranquilla, in posizione comoda e facilmente raggiungibile: Bellinzona dista soltanto 15 km e si raggiunge in circa 15 minuti, Biasca è a soli 5 km.

L’abitazione è ideale per la famiglia e per coloro che desiderano beneficiare di piacevoli spazi esterni, di privacy e tranquillità.

La costruzione è stata realizzata nel 2005 in stile edificatorio tradizionale.

Attualmente sono in corso importanti opere di miglioria su tutta la parte esterna, come anche negli ambienti interni.

La villetta sarà agibile, a seguito del rinnovo completo, a partire da marzo 2026.

Il riscaldamento è di tipo tradizionale, la caldaia è alimentata con olio combustibile, il calore viene distribuito tramite serpentine posate a pavimento.

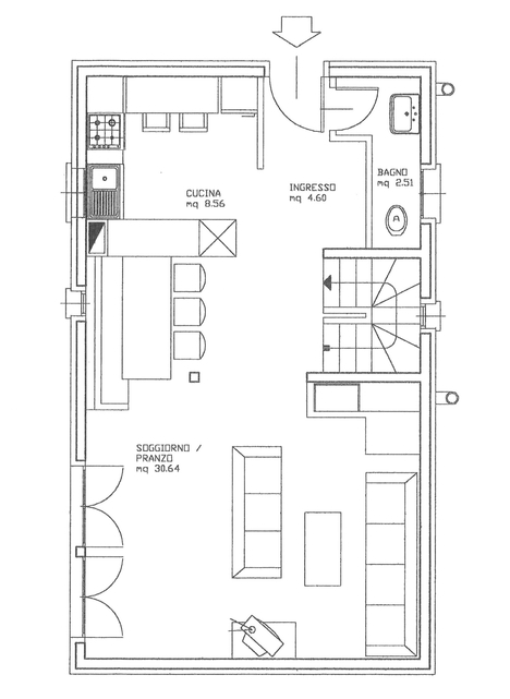
Gli spazi abitabili risultano generosi ed accoglienti, sono valorizzati sia dalla loro tipologia di distribuzione che dalle nuove rifiniture di ottima qualità.

Il piano inferiore offre spazio ben impiegato per differenti tipologie d’utilizzo.

Lo spazio esterno viene valorizzato dalla terrazza coperta, dal balcone soprastante e dal bel giardino pianeggiate completamente recintato, nel quale è presente un funzionale grill in pietra.

La proprietà dispone di 2-3 posteggi posti sul lato Nord della proprietà e con accesso dalla strada privata.

* campi obligatori.
Please insert valid email address.
Richiesta informazioni Codice oggetto: 20789
INVIA SCHEDA A UN AMICO