Nuovo Appartamento all'ultimo piano con simpatica terrazza
Località : Rivera
Venditaappartamenti
Località : Rivera
Prezzo:CHF 565'000.00
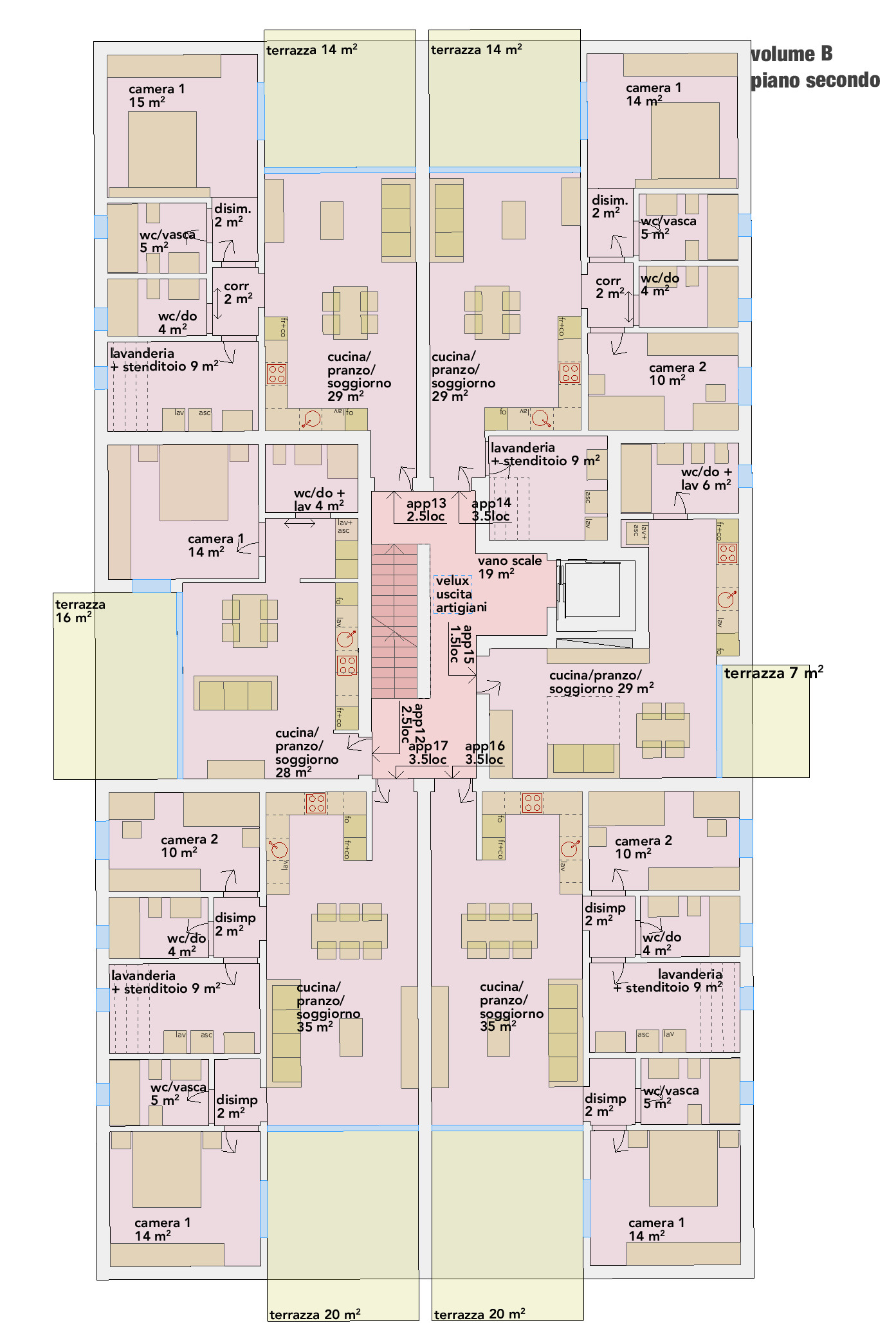
Dettagli immobile
Numero locali : 3.5
Superficie : 93 m2
Terrazzo/e : 15 m2
Piano appartamento: 2° piano
Numero appartamento : 26
indirizzo :Via Bricola
Disponibilità : Concordare
Descrizione Immobile
La Residenza Bricola sorgerà nel cuore di Rivera, poco distante dallo Splash & SPA, dalla funicolare del Monte Tamaro e dall’imbocco dell’asse autostradale.
L’edificazione è inserita accanto ad un ampia zona verde, in pochi minuti a piedi si puo’ raggiungere la fermata dell'autopostale e la stazione FFS.
L’edificazione prevede la realizzazione di due stabili indipendenti di 3 piani su due livelli differenti che distribuiscono le abitazioni tra il piano terreno ed il secondo piano.
L’ autorimessa completamente interrata forma una piattaforma verde che diventa base d’appoggio e giardino.
Al piano interrato trovano posto anche le cantine ed i locali tecnici. La parte tecnica utilizza soluzioni di ultima generazione:La produzione di calore avviene tramite termopompa aria-acqua che beneficia dell'energia prodotta dai pannelli fotovoltaici posati sul tetto.
Particolare attenzione è stata posta ai temi energetici: L'isolazione esterna è con cappotto isolante, mentre i serramenti sono ben isolati rispettando le severe norme vigenti.
E' inoltre prevista la predisposizione per la posa di wallbox per auto elettriche.
L’organizzazione interna degli appartamenti è caratterizzata da una chiara suddivisione tra la zona giorno e la zona notte, gli spazi abitabili risultano generosi, accoglienti e ben distribuiti.
La scelta personale delle rifiniture valorizzerà notevolmente gli ambienti della propria abitazione. Particolarità molto apprezzate sono i doppi servizi e la lavanderia privata inserita all'interno dell'abitazione che conferiscono un'ottima comodità d'utilizzo.
Lo spazio esterno privato è garantito dalla comoda terrazza.
2 posti auto in autorimessa compresi nel prezzo.
















